Berry Pen Cottage

Large Image

1/26

Berry Pen Cottage

Holiday village

Property Type

Holiday village

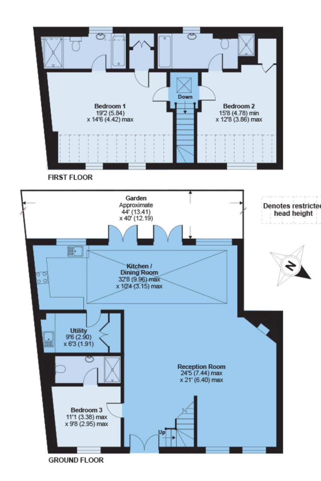
Guests

6

Bedrooms

3

Bathrooms

3

IA

Hosted by Interhome A.

Member since May 2025

About this property

Kingham: Cottage. For shared use: swimming pool (seasonal availability: 15.Jun. - 15.Sep.). Tennis. Private: garden. Garden furniture.
  • Kitchen

    • Dishwasher
    • Microwave
    • Oven
    • Toaster
  • Outdoor

    • Pool

Check availability

Past
Today
Booked
Available
SuMoTuWeThFrSa
SuMoTuWeThFrSa

Location

Meet the host

IA

Interhome A.

Member since May 2025

61283

Listings

Languages:

English

Services:

No services

Interhome Admin

Interhome's other listings

Important house rules & info

    $ 0 /per night

    You won't be charged yet

    Report this listing